El Albarico: Propriété à vendre en Bedar
Description
Retraite idyllique en Andalousie : Ruines jumelles à vendre avec vue sur la mer et la montagne à El Albarico, Bédar, Almería.
En bref : Projet de construction de 2 maisons dans le paisible village d'El Albarico, près de Bédar, Almería. Cette propriété unique offre une opportunité rare d'acquérir deux ruines adjacentes sur des parcelles séparées, chacune avec des vues spectaculaires sur les montagnes et la mer au loin. Situé à 600 mètres au-dessus du niveau de la mer, cet endroit paisible est la toile parfaite pour une retraite de rêve ou une splendide maison de vacances, conçue pour embrasser la campagne idyllique.
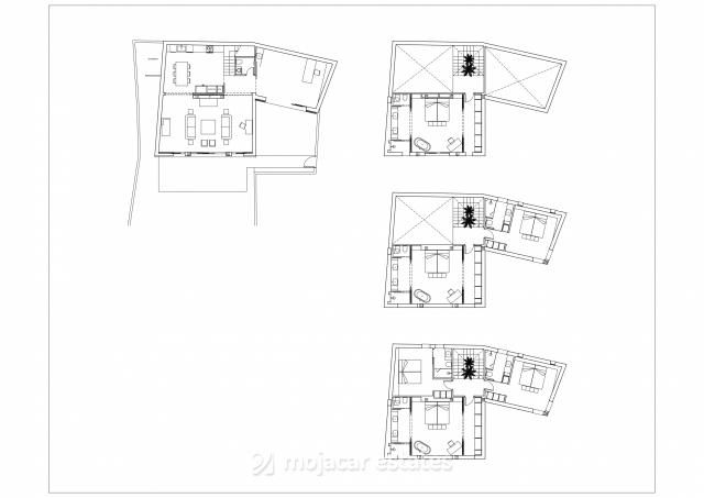
Aménagement : Les propriétés présentent les caractéristiques suivantes
- Casita 1 : Cette ruine s'étend sur deux étages, avec une surface construite totale de 210m² (105m² par étage). Le terrain s'étend sur 448 m², avec trois terrasses, et le bâtiment lui-même occupe 105 m² du terrain.
- Casita 2 : Une ruine de plain-pied d'une superficie de 84m², nichée sur un terrain de 210m².
Les deux structures ont besoin d'une rénovation complète, offrant une table rase pour la personnalisation et la conception créative, idéale pour une résidence sur mesure ou une escapade de vacances.
Espaces extérieurs : Chaque parcelle bénéficie d'un espace extérieur qui peut être transformé en superbes jardins en terrasses, en espaces de vie extérieurs ou en une vue panoramique pour un dîner sous les étoiles. Les terrasses existantes ajoutent un aspect dimensionnel au paysage, parfait pour les cultures ou les jardins ornés.
Inclus dans la vente : Cette vente comprend les deux ruines avec des titres de propriété séparés, les services essentiels tels que l'électricité et l'eau, et un ensemble complet de plans conçus par des architectes pour les deux propriétés. Ces plans ont été créés avec soin pour optimiser le potentiel du site et sont inclus dans la vente, offrant un point de départ immédiat pour le réaménagement. Des photographies des ruines et des visualisations des projets potentiels sont également disponibles pour aider à imaginer la transformation.
Emplacement : L'emplacement exact de la propriété est indiqué par une épingle sur la carte Google. El Albarico est un hameau paisible, situé à 20 minutes de route sinueuse du village de Bédar, en Andalousie. L'altitude offre des vues incomparables sur la mer, ce qui crée un sentiment d'isolement et d'intimité. La région est un paradis pour les amateurs d'activités de plein air, avec un accès immédiat à de nombreux sentiers de randonnée et pistes cyclables.
Cette propriété est idéale pour ceux qui cherchent à échapper à l'agitation de la vie urbaine et à s'immerger dans la nature, avec tous les avantages du charme et du climat andalou.
Ces ruines représentent une opportunité remarquable de restauration en une propriété spectaculaire, avec des plans architecturaux pré-conçus pour démarrer votre projet. Cette offre est parfaite pour ceux qui cherchent à investir dans une future maison dans l'un des endroits les plus beaux et les plus tranquilles d'Espagne, en combinant le charme et le climat favorable de l'Andalousie avec une touche personnelle de flair architectural.
Aéroports
L'aéroport d'Almeria est à 45 minutes en voiture, l'aéroport de Murcie à 1 heure 10 minutes, l'aéroport d'Alicante à 2 heures et l'aéroport de Malaga à 2 heures 30 minutes.
4 terrains de golf
Mojacar : Marina de la Torre, Vera : Valle del Este, Cuevas de Almanzora : Desert Springs, Pulpi : Aguilon Golf.
À propos de nous
Mojacar Estates est une agence indépendante de vente de propriétés et de location de vacances qui fonctionne avec succès depuis 1982. Notre équipe dévouée, qui travaille dans ce secteur depuis plus de 20 ans, offre un service professionnel et compétent à nos clients. Notre équipe parle couramment l'espagnol, l'anglais et l'allemand. Nous proposons des propriétés à vendre et à louer à Mojacar et dans les environs d'Almeria, notamment à Turre, Garrucha, Vera Playa, Los Gallardos, Villaricos et San Juan de los Terreros.
Le prix indiqué ne comprend pas les taxes et les frais dérivés de la vente (ITP au taux d'imposition en vigueur, frais de notaire, d'enregistrement et d'avocat). Nous vous rappelons qu'en tant que consommateur, vous avez le droit d'être informé et de recevoir la documentation informative correspondante, selon le cas, conformément aux dispositions du décret 218/05 du 11 octobre, qui régit le règlement relatif à l'information du consommateur en matière de vente et de location de logements en Andalousie.
Calculateur d'hypothèque
Certificat énergétique
- A
- B
- C
- D
- E
- F
- G
Pendant
Ajouter à la liste
El Albarico — #ME 2497
Ruine à vendre en Bedar, Almeria
Ruine
75.000€
- Surface terrain 658 m²
- Surface habitable 294 m²
Frais d'entretien approximatifs
- Tarifs annuels du conseil143,61€
- Collecte trimestrielle des ordures37,07€
Caractéristiques spéciales
- Vues spectaculaires
- 2 propriétés avec 2 ruines
- Terrains et bâtiments
- Projets inclus
- 20 minutes de route de Bédar
- Terrain en terrasses
- Electricité et eau

Contact
Droits de mutation
- Prix net75.000€
- Impôt sur le transfert de titre de propriété (IVA)5.250€
- Frais de notaire - estimatif700€
- Bureau du cadastre - estimatif188€
- Prix total81.138€
* Les informations fournies au consommateur concernant les taxes et les prix seront valables pendant 24 heures, car elles peuvent être soumises à des variations de prix ou à des modifications des taxes ou des frais communautaires.
* Le transfert n'est pas inclus
* Les taux appliqués sont les plus élevés, et l'acheteur peut -en raison de leurs caractéristiques- bénéficier de déductions fiscales. La propriété A.I.D. est disponible dans nos locaux conformément au décret 218/2005 du 11 octobre réglementant la réglementation de l’information du consommateur lors de l’achat-vente de biens immobiliers en Andalousie.
Le Marché Immobilier en Espagne en 2025 - Ce que les Acheteurs Doivent Savoir
Si vous envisagez d’acheter un bien immobilier en Espagne cette année, vous entrez dans un marché dynamique et en pleine évolution.