La Torrecica Bedar: Propriété à vendre en Bedar
Description
Un grand terrain rustique de 18 356 m2 situé dans une belle campagne avec vue sur la mer et les montagnes et un permis de construire une maison de 230 m2 près du village de Bedar à Almeria, Andalousie.
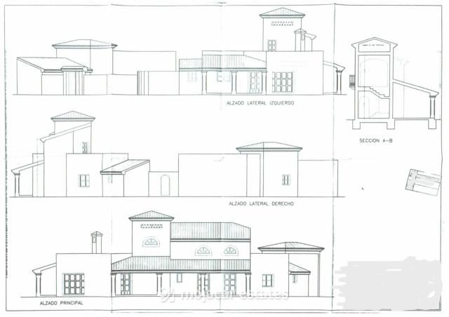
Le terrain rustique est vendu avec un projet de construction d'une maison unifamiliale de 230 m2 sur deux étages avec 4 chambres et 4 salles de bains disposées autour d'une cour centrale. Les plans prévoient deux salons, une salle à manger, une cuisine, une buanderie et un bureau. Le projet est d'une conception unique et la maison finie ferait un foyer extraordinaire avec des vues magnifiques dans un endroit très paisible et à proximité du centre bouddhiste. Les points de raccordement à l'eau et à l'électricité sont proches.
Ce prix concerne le terrain et le projet. Il n'inclut pas les coûts de construction de la propriété, qui seront supportés par l'acheteur.
Emplacement : Situé le long d'une route rurale asphaltée. 600 m au-dessus du niveau de la mer. À 6,5 km de la ville de Bedar ou à 15 minutes en voiture. Voir l'épingle sur google maps ci-dessus.
Aéroports
L'aéroport d'Almeria est à 35 minutes en voiture, l'aéroport de Murcie à 1 heure 10 minutes, l'aéroport d'Alicante à 2 heures et l'aéroport de Malaga à 2 heures 30 minutes.
4 terrains de golf
Mojacar : Marina de la Torre, Vera : Valle del Este, Cuevas de Almanzora : Desert Springs, Pulpi : Aguilon Golf.
À propos de nous
Mojacar Estates est une agence indépendante de vente de propriétés et de location de vacances qui fonctionne avec succès depuis 1982. Notre équipe dévouée, qui travaille dans ce secteur depuis plus de 20 ans, offre un service professionnel et compétent à nos clients. Notre équipe parle couramment l'espagnol, l'anglais et l'allemand. Nous proposons des propriétés à vendre et à louer à Mojacar et dans les environs d'Almeria, notamment à Turre, Garrucha, Vera Playa, Los Gallardos, Villaricos et San Juan de los Terreros.
Le prix indiqué ne comprend pas les taxes et les frais dérivés de la vente (ITP au taux d'imposition en vigueur, frais de notaire, d'enregistrement et d'avocat). Nous vous rappelons qu'en tant que consommateur, vous avez le droit d'être informé et de recevoir la documentation informative correspondante, selon le cas, conformément aux dispositions du décret 218/05 du 11 octobre, qui régit le règlement relatif à l'information du consommateur en matière de vente et de location de logements en Andalousie.
Calculateur d'hypothèque
Certificat énergétique
- A
- B
- C
- D
- E
- F
- G
Pendant
Ajouter à la liste
La Torrecica Bedar — #ME 2847
Terrain à vendre en Bedar, Almeria
Revente
119.000€
- Surface terrain 1,8356 hectares
Caractéristiques spéciales
- Terrain avec projet
- Licence en place
- Design unique
- Vue sur la mer et les montagnes
- Belle campagne
- 15 minutes de Bedar
- 30 minutes de la plage

Contact
Embrassez la Magie de l'Hiver à Mojacar
À l'approche de l'hiver et alors que la mer prend une fraîcheur revigorante, Mojacar dévoile un charme différent, qui attire les visiteurs avec la promesse d'aventures actives, de délices cultur